カテゴリー:厨房工事
-
厨房には設備がいっぱい!?配管チェック
厨房設計はお店の核です。 ガス、給水、排水、電気、換気が絡み合う、設計で要となるポイントです! お店の業態で使用する機器は大きく変わります。 中華レンジやゆで麺器など、特殊な機器が揃っています。 機器それ… -
閉じる前に厨房機器の設備確認。
大工さんが床を貼っている所です。今回の厨房はドライ。見えなくなってしまう排水、給水などの設備ルートを確認して行きます。見えなくなってしまってからでは、どうになりませんので(^^) 電気のルートもコンセント、容量も現… -
07.厨房機器搬入‼ ~相模原 ケーキ屋さん~
今日は厨房機器の搬入をしました! 打ち合わせ通りに設置完了しました。 設置のあとは機器の接続です!事前にオーナーさんとし… -
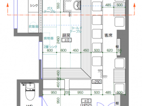
02.厨房レイアウトと使い勝手
飲食店の設計の核は厨房機器のレイアウトといっても過言ではありません。 お客様はおいしい食事を求めて来るわけです。そこでおもてなしとしての機能が厨房に当たるわけです。 ここを蔑ろにすると、将来的に必ずお店にとって不…




















