飲食店の設計の核は厨房機器のレイアウトといっても過言ではありません。
お客様はおいしい食事を求めて来るわけです。そこでおもてなしとしての機能が厨房に当たるわけです。
ここを蔑ろにすると、将来的に必ずお店にとって不利益になります。
そこで今回も諸条件からプランが次々へと変化していく状況をご紹介します。
A案からF案まで御覧ください。時系列になってます。
「A案」~内装既存利用

「B案」~奥が調理

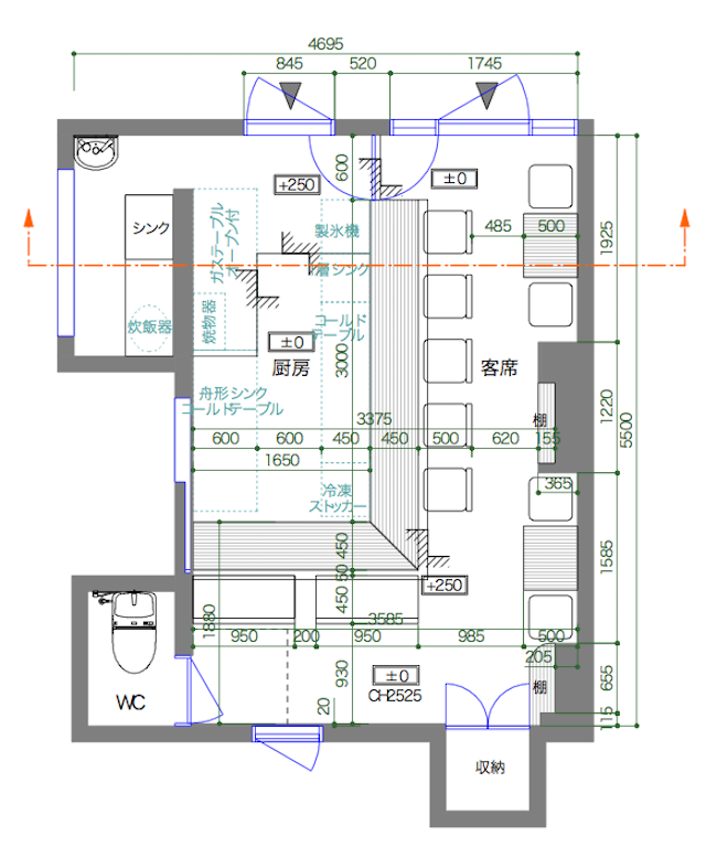
「C案」~既存コールドテーブル利用

「D案」~既存ミニキッチン利用

「E案」~収納増加

「F案」~調理場カウンター側へ

「断面検討」~目線を合わせる

コメント
この記事へのトラックバックはありません。























この記事へのコメントはありません。