- Home
- 実施設計手法
カテゴリー:実施設計手法
-
平面図の書き方
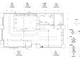
平面図 = 目線ラインから見下ろした図 0.作成の準備 ベクターワークス(以下VW)で平面図を作成する際は『登録画面』で作業するデザインレイヤを設定しておくと、時間の短縮につながります。 弊社のテンプレート… -
電気設備図目次
・電気設備図とは ・電気設備図は誰のための図面? ・電気設備図の要素とは ・業者とのやりとり ・スイッチにについて ・コンセントの配置について ・電気設備の系統のまとめ方 ・飲食店の電気設備の… -
ガスメーターの見方
基本だけどあまり知らないガスメーターの見方についてです。 下記がガスメーターのチェック項目です。 〈現調時〉 ①ガス管及びガスメーターがあるかの確認 ②ガス管及びガスメーターの位置の確認 ③ガスメーターの… -
都市ガスとLPガスの違い
ガスの種類についてです。 ガスは大きく「都市ガス」と「LPガス」とに別れます。 ・都市ガス 原料、製造方法、発熱量により7種類のグループに分かれます。 各都市ガス会社により、また同一会社であっても地域によりガスの… -
今さら聞けない!ケーブル、CD管についてのまとめ
電気設備に必要な基礎知識 今さら聞けない!ケーブル、CD管についてのまとめです。 まずは通常の電源ケーブルです。 ■エフケーブル 電気やコンセントなど電気系統の配線に用いられる一般的なケーブルです。 … -
コンセントの配置について
コンセントは単層100Vです。単層、三相の考え方についてはこちらの記事にて紹介します。 ■客席コンセントについて ・掃除用のコンセントを想定します。 家庭用掃除機のコード約5m、業務用大型クリーナーは約8mなので、… -
厨房排気の考え方と注意点
排気の中でも飲食店では必ず出てくる「厨房排気」の考え方についてです。 まず、厨房にはフライヤーやコンロなど熱を発生する機器(以降、熱源機器)があります。 その上部に付けるのがフードです。 フードの中に入… -
什器図 三面図の書き方
Sketch Upのモデルから三面図を書く ここではLayoutで什器の三面図の書き方を紹介していきます。 ■帯設定 ・テンプレートからHDAを選択 ■レイ… -
防水区画図を書く
防水方法が決まったら、実際に防水区画図をVectorworksで書いていきます。 目標は上記画像です。 ■まずは防水範囲を決める ・平面図の厨房機器寸法により防水範囲を決める 防水区画=厨房区画というイメージ… -
防水の種類を判断する
一言に防水と言っても、様々な防水の仕方があります。 まずは現場にあった防水を選定しましょう。 ・塗膜防水 現場で液状の防水材料を塗り、化学反応の膜をつくります。 自由度が高い、施工性が楽、安い…

















